Riorganizzazione degli ospedali Inrca:
ampliata area semi-intensiva di Ancona,
restyling del pronto soccorso a Osimo
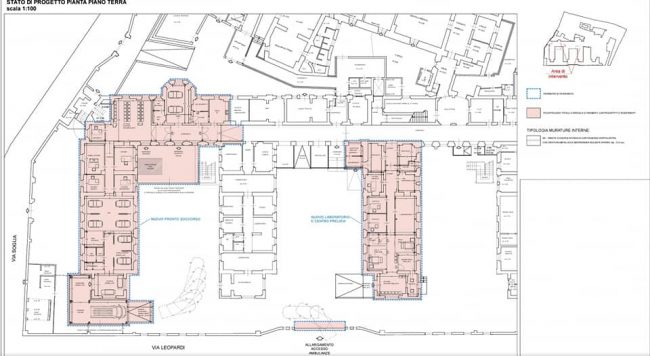
L’Inrca di Ancona potenzierà l’area semi-intesiva con percorsi separati e 10 nuovi posti letto, l’Inrca di Osimo ristrutturerà, dopo quasi 30 anni di attesa, i locali del Pronto soccorso spostandoli in quelli che attualmente accolgono il Laboratorio analisi dell’ospedale. Dopo la dichiarazione del Consiglio dei Ministri sullo stato di emergenza sanitaria firmata per la prima volta il 30 gennaio 2020 e poi prorogata, a ottobre 2020 il commissario straordinario per l’attuazione e il coordinamento delle misure di contenimento e contrasto dell’emergenza Covid-19 ha nominato le aziende del Servizio Sanitario Regionale di Basilicata, Calabria, Marche, Molise, Lazio, Lombardia, Piemonte, Sardegna e Umbria quali soggetti attuatori dei piani di riorganizzazione delle aziende ospedaliere nelle strutture di rispettiva competenza, per la realizzazione dei lavori finalizzati al potenziamento della rete ospedaliera. Anche l’Inrca ha inviato un cronoprogramma degli interventi contemplati nel piano di riorganizzazione e potenziamento della rete ospedaliera per emergenza Covid-19 e da eseguirsi anche presso i presidi di Ancona e Osimo secondo le ‘Linee di indirizzo organizzative per il potenziamento della rete ospedaliera per emergenza Covid -19’ approvate dalla Regione Marche nel maggio 2020. L’Inrca ha optato per l’adeguamento di un’area all’interno del presidio di Ancona dedicata all’assistenza di pazienti che necessitano di assistenza ‘semintensiva’, con percorsi e spazi separati e una dotazione di 10 posti letto, sia per la riorganizzazione logistico strutturale dei punti di accesso al Pronto Soccorso del Presidio di Osimo.
Nello specifico i due progetti prevedono per il presidio ospedaliero di Ancona, la sostituzione dell’impianto provvisionale per la pressione negativa e realizzazione di impianto di condizionamento e opere edili/elettriche/idrauliche connesse; adeguamenti dell’impiantistica antincendi, gas medicali, impianti elettrici/testaletto, ed altri; per un impegno di spesa complessivo di 483.120 (inclusa Iva), mentre per il presidio ospedaliero di Osimo, l’adeguamento architettonico ed impiantistico dei percorsi di pre-triage del Pronto Soccorso; per un impegno di spesa complessivo di 274.500 (inclusa Iva). Gli interventi sono stati autorizzati a novembre 2020 per un investimento totale di 757.620 euro, perché «individuati come necessari ed urgenti dall’Unità di Crisi aziendale e condivisi dalla Direzione medica in accordo con la Direzione generale d’Istituto, – si legge nel determina Inrca che autorizza alla stipula degli appalti – in conseguenza dell’evoluzione continua dell’emergenza sanitaria ed in attuazione di quanto stabilito a livello nazionale e regionale, permetteranno quindi di realizzare di 10 posti letto la dotazione di posti letto per terapia sub-intensiva adeguando strutturalmente e tecnologicamente una quota parte degli attuali posti letto in ambito medico, nonché garantiranno le necessarie rimodulazioni dei percorsi di accesso in sicurezza ai servizi interessati» nel presidio dorico e spazi più ampi per il pronto soccorso di Osimo, avvicinandolo così alla postazione del 118 che un anno fa era stata spostata in locali vicini proprio al Laboratorio Analisi, nell’ala dell’ospedale diripettaria all’attuale reparto di Medicina d’urgenza. Il progetto è stato ripensato e ottimizzato rispetto a quello originale che lasciava il Pronto soccorso al suo posto e prevedeva la realizzazione di un ascensore di collegamento con la terza corsia di Chirurgia al primo piano del ‘Ss Benevenuto e Rocco’ per ampliare i letti di ricovero in osservazione breve.

il sindaco Simone Pugnaloni (al centtro) con il dg dell’Inrca Gianni Genga (alla sua destra)) durante una conferenza stampa a palazzo comunale di Osimo (foto d’archivio)
«Ci ho sempre creduto. – commenta il sindaco di Osimo Simone Pugnaloni – L’ospedale di Osimo a gestione Inrca dopo aver mantenuto l’impegno alla nomina di tutti i primari ed aver rinforzato le maestranze, oggi ci comunica un’altra bella notizia. Finanziati dal Commissario straordinario all’emergenza coronavirus, ed oggi progetto validato da Inrca, l’ospedale di Osimo avra’ un nuovo e rinnovato Pronto soccorso. Il Pronto soccorso che prenderà il posto di parte dei locali del laboratorio analisi ed il laboratorio analisi che si sposterà in quelli dell’attuale Pronto soccorso. La novità che mai era accaduto ad Osimo, con il finanziamento ottenuto probabile l’attivazione di alcuni posti letto di terapia sub intensiva ad Osimo. Una grande conquista, grazie al direttore generale Inrca Gianni Genga. Il finanziamento dello Stato prevedeva un impegno per il rafforzamento della rete delle terapie intensive e subintensive presso i pronto soccorsi. La Regione Marche a giugno del 2020, Giunta Ceriscioli, approvo’ i progetti da finanziare tra cui Inrca Ancona ed Osimo. Inrca con determina di Novembre ha approvato definitivamente i progetti su Ancona ed Osimo consci di aver definitivamente esigibile il finanziamento dello Stato che per Osimo è pari a 275 mila euro. Inrca dimostra ancora una volta di essere un’eccellenza qualificata sul territorio nazionale, orgoglioso di aver una sede osimana».

Il ventilatore polmonare consegnato qualche mese fa dalle Liste civiche all’ospedale di Osimo (foto d’archivio)
«Per anni hanno parlato della terza corsia dell’ospedale, dell’ampliamento del pronto soccorso. Parole.- mettono in evidenza in una nota le Liste civiche di minoranza – Ora ci comunicano dalla Regione che il pronto soccorso dell’Inrca di Osimo verrà a brevissimo ampliato buona parte del piano terra. Fatti. Anche le nostre istanze hanno avuto un fine. Sappiamo bene che è poca cosa e che ancora molto ci sarà da fare per la sanità sul territorio, ma è e sarà un passo in avanti. Non molliamo per assicurare assistenza sanitaria per tutti. Ci comunicano dalla Regione che arrivano finanziamenti al Comune di Osimo per il bando di riqualificazione delle periferie. a cui l’ente ha partecipato. Un altro nostro impegno che trova realizzazione».
Articoli correlati
Lascia l’ospedale di Osimo dopo 23 anni: Rita Curto è il nuovo primario del pronto soccorso di Civitanova
Focolaio di contagi all’Inrca-Osimo, i sindacati chiedono «più sicurezza per chi lavora in ospedale»
Torna alla home page
































































